Please ensure Javascript is enabled for purposes of website accessibility

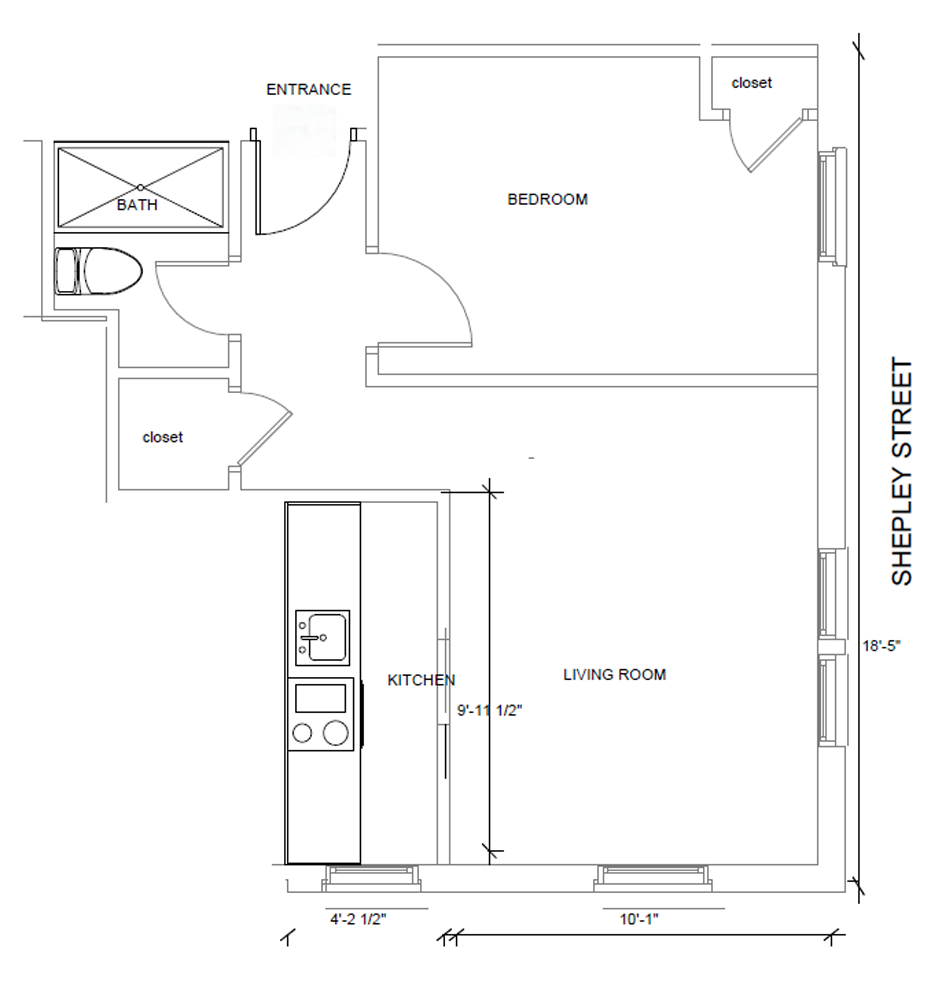
Discover Studio & 1 Bedroom Apartments